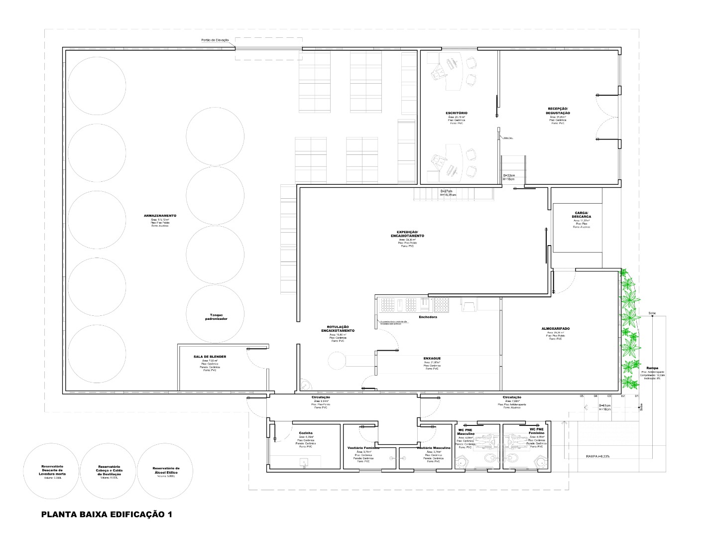
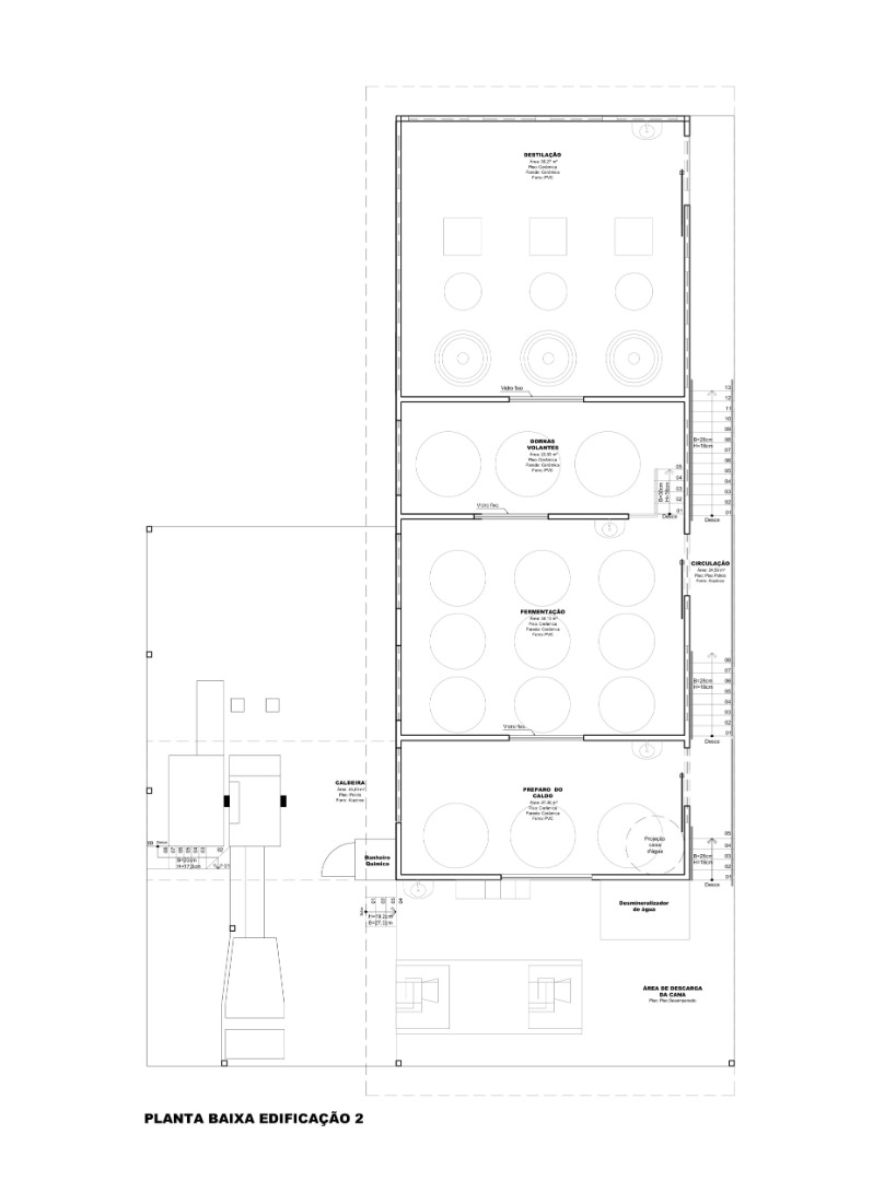
Edificação Agroindustrial em alvenaria estrutural, com área total de 690,41 m².

O projeto foi desenvolvido pensando nas necessidades específicas para instalação de uma indústria de cachaça com produção sustentável. Para isso foram analisados os processos envolvidos na fabricação, bem como as legislações vigentes para cachaçarias.

Os espaços projetados atendem a parte de produção e administração, contando com salas de escritório, recepção/loja, etc. O projeto foi pensado para que além da fabricação de cachaça a edificação tenha potencial turístico para visitação, sendo ponto de referência para o município do Paraíso

A edificação possui alguns diferenciais voltados a sustentabilidade, como captação da água da chuva; adega subterrânea com refrigeração natural, sendo feita utilização de água corrente pelo perímetro do piso; painéis fotovoltaicos para produção de energia solar, que além de suprir a demanda da indústria Heats Brazil produzem parte da energia para alimentar a sede da empresa Habiteto e outras obras da Incorporadora em andamento.

Projeto: 2015

Início da obra: 2016

Conclusão da obra: 2016


Localização

Linha Fundo União, Gleba Peperi Chapecó, Paraíso -SC