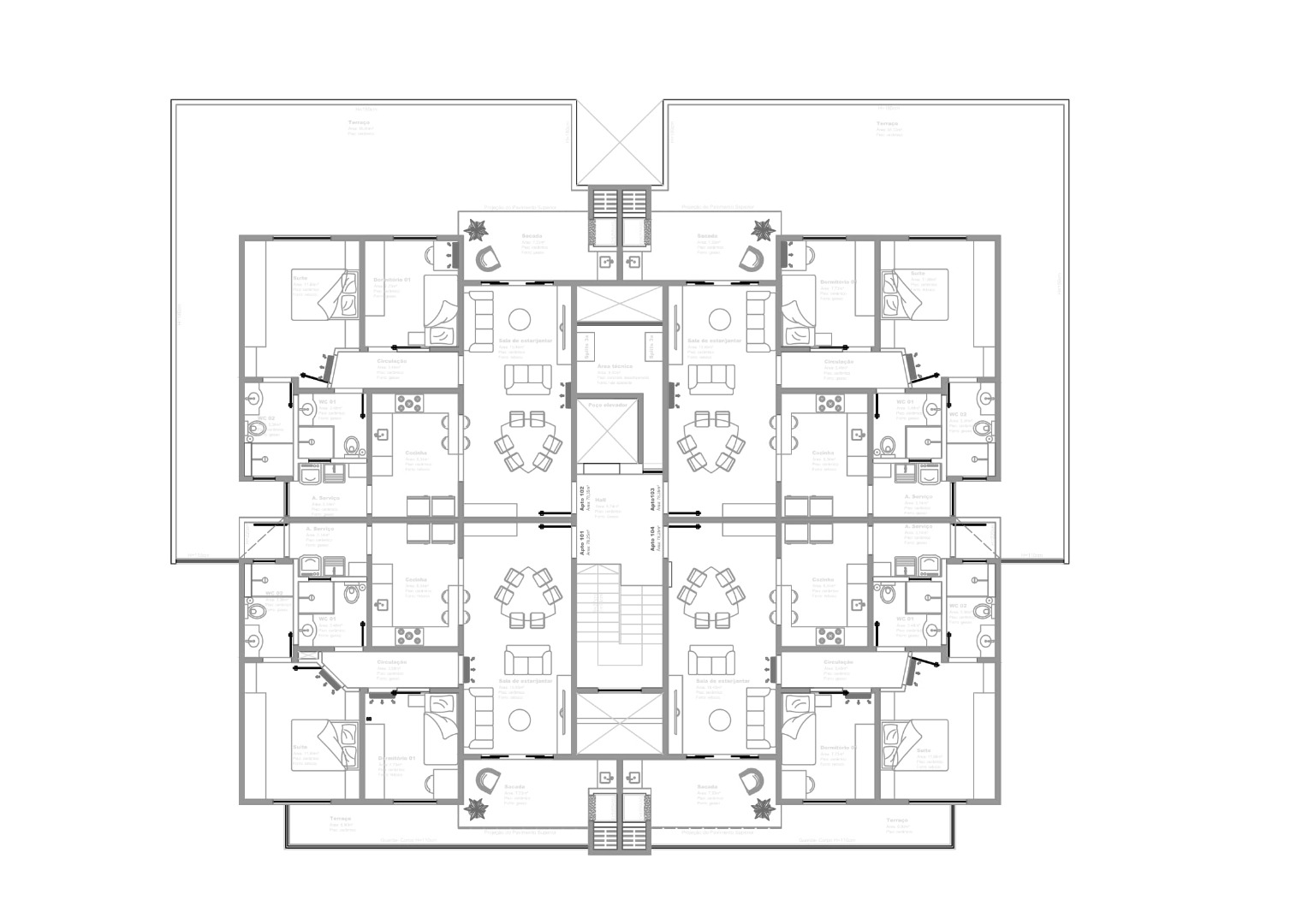
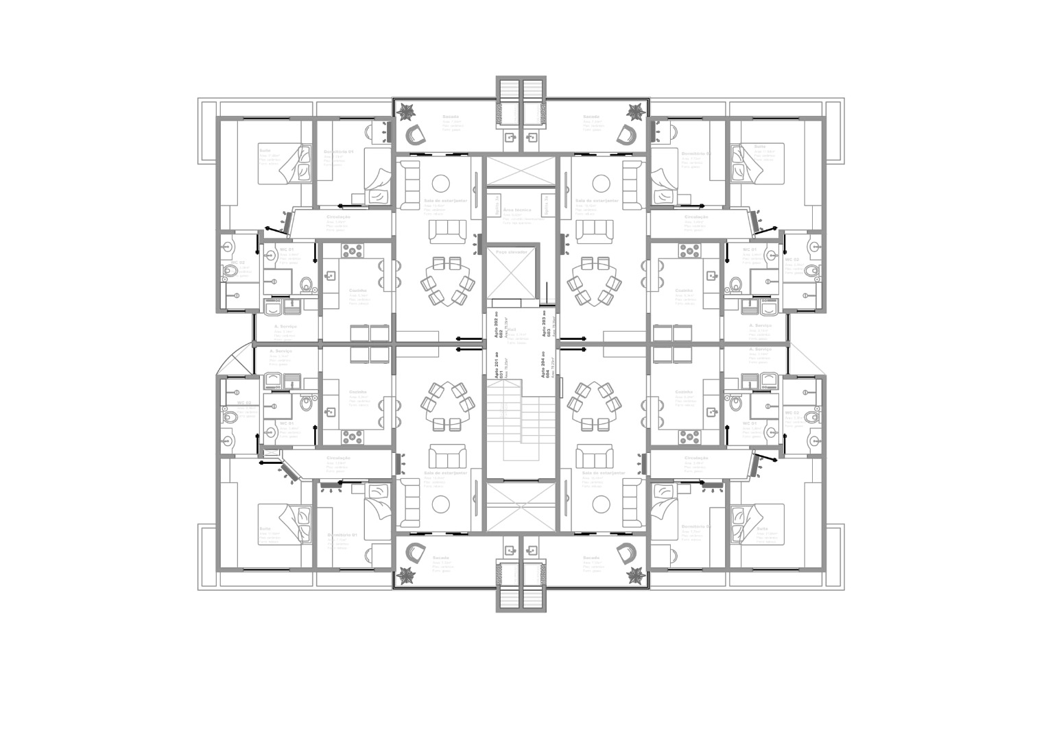
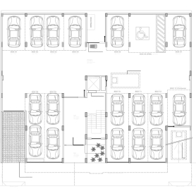
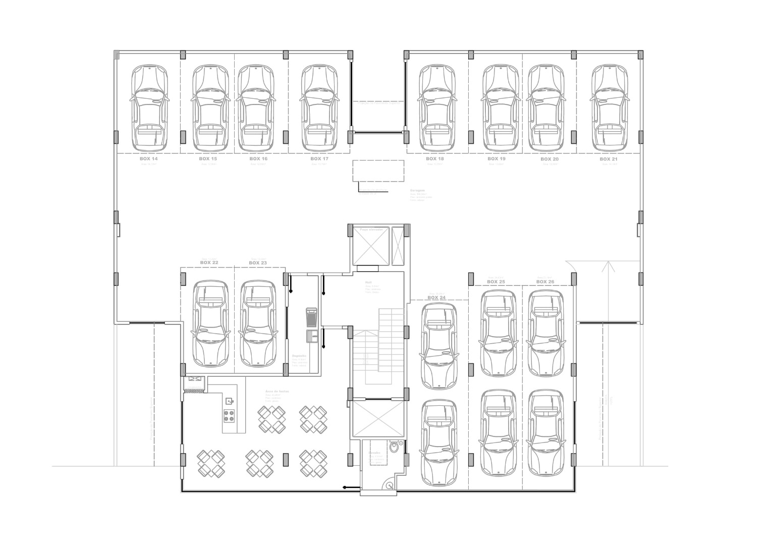
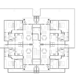
Edifício Residencial em alvenaria, com 08 pavimentos e área total de 2.999,04 m².

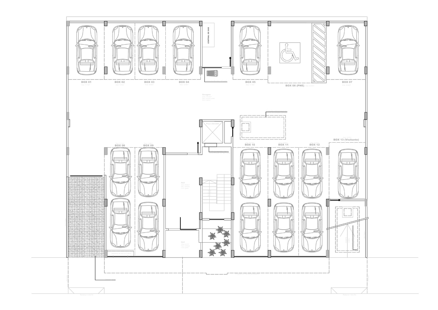
Contém 24 unidades residenciais, com área aproximada de 116,21 m². Cada apartamento conta com box de garagem, 02 dormitórios, sala, cozinha, 02 banheiros, sacada com churrasqueira e área de serviço.

Projeto: 2013

Início da obra: 2013

Conclusão da obra: 2016


Localização

Rua La Salle, Centro, São Miguel do Oeste – SC