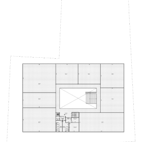
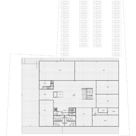
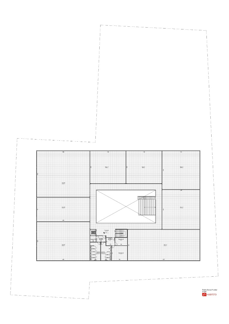
Estudo de viabilidade para Projeto de Centro Tecnológico com 14 salas comerciais, 3 salas de reunião e diversos ambientes dinâmicos distribuídos em 3 pavimentos, contemplando 136 vagas de estacionamento.

Estudo: 2018


Localização