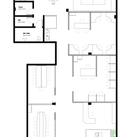
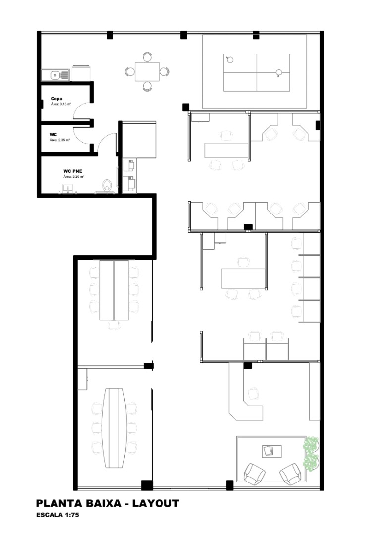
Projeto de interiores para sala comercial de 220m².

O projeto prevê a organização de layout interno, detalhamento de mobiliários e divisórias em MDF, pensando na funcionalidade e melhor aproveitamento dos espaços conforme as necessidades da empresa.

Projeto: 2017


Localização

Rua XV de Novembro, Bairro São Jorge - São Miguel do Oeste - SC